XỬ LÝ BỤI, MÙI HÔI, KHÍ ĐỘC HẠI


Xử lý khí thải là quá trình xử lý lượng khí thải, khói bụi phát trinh trong quá trình hoạt động sản xuất của các nhà máy sản xuất. Tùy vào đặc thù ngành nghề của từng nhà máy mà mà lượng khí thải thoát ra môi trường có tính chất và thành phần khác nhau, Vì vậy cần phải có phương án và công nghệ xử lý phù hợp để loại bỏ hiệu quả thành phần ô nhiễm cho môi trường xung quanh, bảo vệ an toàn sức khỏe người lao động.

Các loại khí thải cần xử lý:

– Xử lý khí thải xi mạ, gia công kim loại,
– Xử lý hơi dung môi, hơi axit
– Xử lý khí thải lò đốt rác, lò hơi
– Xử lí khí thải nhà máy xi măng, vật liệu xây dựng
– Xử lý bụi công nghiệp, bụi gỗ, bụi giấy, bụi vải, sợi thủy tinh
– Xử lý khí thải bụi sơn
– Xử lý mùi nhà máy chế biến thủy sản, nhà máy giết mổ gia súc, gia cầm
– Xử lý mùi nhà máy sản xuất hóa chất, xử lý mùi cao su, xử lý mùi bãi rác
– Xử lý mùi hệ thống xử lý nước thải
– Xử lý khói dầu mỡ các bếp ăn/ căn tin/ nhà hàng

Các công nghệ & thiết bị xử lý khí thải

1. Xử lý khí thải bằng phương pháp cơ học

Sử dụng cyclon:

Là thiết bị có trong rất nhiều các hệ thống xử lý khí thải, là giai đoạn xử lý sơ bộ để tách đa phần lượng bụi lớn trong dòng khí thải.

Kích thước hạt là một thông số cơ bản trong việc thiết kế thiết bị Cyclon tách bụi. Việc lựa chọn thiết bị tách bụi tùy thuộc vào thành phần phân tán của các hạt bụi tách được. Trong các thiết bị tách bụi đặc trưng cho kích thước hạt bụi là đại lượng vận tốc lắng của chúng như đại lượng đường kính lắng.

Do các hạt bụi công nghiệp có hình dáng rất khác nhau (dạng cầu, que, sợi, ); nên nếu cùng một khối lượng thì sẽ lắng với các vận tốc khác nhau, hạt càng gần với dạng hình cầu thì nó lắng càng nhanh. Các kích thước lớn nhất nà nhỏ nhất của một khối hạt bụi đặc trưng cho khoảng phân bố phân tán của chúng.

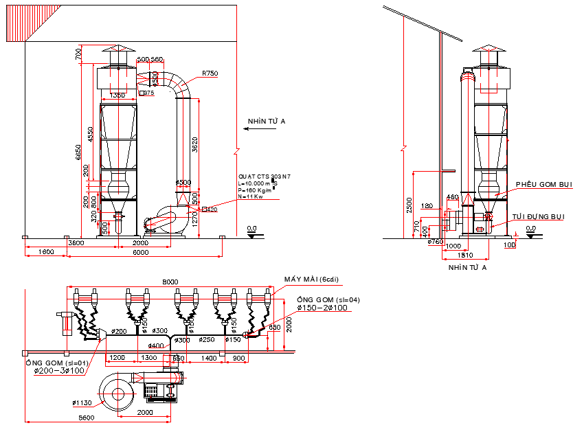
Sử dụng túi lọc bụi

Túi lọc bụi là một trong những thiết bị được sử dụng rộng rãi nhất trong các công trình xử lý khí thải, do túi lọc bụi dễ dàng thi công, hiệu xuất xử lý cao và giá thành tương đối hợp lý.

Nguyên lý của túi lọc bụi như sau: cho không khí lẫn bụi đi qua 1 tấm vải lọc, ban đầu các hạt bụi lớn hơn khe giữa các sợi vải sẽ bị giữ lại trên bề mặt vải theo nguyên lý rây, các hạt nhỏ hơn bám dính trên bề mặt sợi vải lọc do va chạm, lực hấp dẫn và lực hút tĩnh điện, dần dần lớp bụi thu được dày lên tạo thành lớp màng trợ lọc, lớp màng này giữ được cả các hạt bụi có kích thước rất nhỏ .

Hiệu quả lọc đạt tới 99,8% và lọc được cả các hạt rất nhỏ là nhờ có lớp trợ lọc. Sau 1 khoảng thời gian hoạt động lớp bụi sẽ rất dày làm sức cản của màng lọc quá lớn hiệu quả xử lý khí thải thì tăng lên tuy nhiên tốc độ và lưu lượng khí thải qua vải lọc sẽ giảm đi rõ rệt, do đó ta phải ngưng cho khí thải đi qua và tiến hành loại bỏ lớp bụi bám trên mặt vải. Thao tác này được gọi là hoàn nguyên khả năng lọc.
Vải lọc thường được may thành túi lọc hình tròn đường kính D=125~250 mm hay lớn hơn và có chiều dài 1,5 đến 2 m. Cũng có khi may thành hình hộp chữ nhật có chiều rộng b=20~60mm; Dài l=0,6~2m. Trong một thiết bị có thể có hàng chục tới hàng trăm túi lọc bụi.

Sử dụng lọc bụi tĩnh điện

Lọc bụi tĩnh điện thường sử dụng cho các hệ thống xử lý khí thải phát sinh nhiều bụi mịn như hệ thống xử lý khí thải các nhà máy nhiệt điện, các lò hơi đốt than…
Nguyên lý làm việc của thiết bị như sau: Khi cho dòng không khí lẫn bụi đi qua điện trường 1 chiều đủ mạnh, chất khí sẽ bị ion hóa bám vào bề mặt hạt bụi làm bề mặt hạt bụi nhiễm điện. Do tác dụng của lực điện trường, hạt điện tích điện sẽ bị hút về cực khác dấu (thường là cực dương). Khi va vào điện cực, hạt bụi bị trung hoà điện và rơi xuống phía dưới đáy xả bụi.
Điện trường một chiều trong thiết bị thường có điện áp rất cao, từ 11 KV đến 80KV tuỳ theo từng loại thiết bị. Trong điện trường, hạt bụi đường kính 0,1mm sẽ tích điện tối đa trong khoảng 1s. Vì thế thời gian dòng khí đi qua thiết bị từ 2 – 8 giây tuỳ theo thiết bị.
Xử lý khí thải bằng thiết bị lọc bụi tĩnh điện hiệu suất rất cao tới 99,8 % khi nồng độ ban đầu đạt 7 g/cm3. Nó thường được sử dụng để lọc tinh không khí sau các cấp lọc thô bằng buồng lắng và Cyclon. Nó còn có ưu điểm là lọc sạch khí thải ở nhiệt độ rất cao mà không làm nguội khí thải.
Thiết bị này còn là thiết bị tiêu hao điện năng thấp 0,2 KW / 1000m3/h vì trở lực thấp (10 – 20 kg/m2). Tuy vậy, nồng độ các chất gây cháy nổ trong khí thải như CO, bụi than… cần được kiểm soát chặt chẽ để tránh bị kích nổ do dòng khí bị ion hóa phát sinh ra tia lửa điện.

 

2. Xử lý khí thải bằng phương pháp hóa học

 Xử lý khí thải bằng phương pháp hấp thụ

Hấp thụ khí thải bằng phương pháp hóa học là phương pháp sử dụng chất lỏng, rắn để làm nguyên liệu hấp thụ khí độc từ quá trình hoạt động sản xuất của nhà máy.
Đây là quá trình chuyển các chất khí độc hại cần xử lý vào trong pha lỏng. Nhờ quá trình hòa tan nên làm chúng tiếp xúc với nhau. Trong quá trình hấp thụ có xảy ra phản ứng hóa học.
Trong tháp hấp thụ dòng khí sẽ được phân bố vào thiết bị ở phía dưới và dòng dung dịch hấp thụ sẽ được phân bố theo chiều từ trên xuống. Dung dịch này được bơm ly tâm vận chuyển từ bể chứa dung dịch hấp thụ, qua bộ phân phối tạo thành những giọt lỏng kích thước nhỏ, phun đều vào thiết bị.
Tháp hấp thụ trong xử lý khí thải có cấu tạo hai tầng, mỗi tầng đảm nhiệm một vai trò trong toàn bộ quá trình xử lý.
Tại phần dưới của thiết bị xử lý, Dung dịch hấp thụ được hệ thống phân phối khí chuyên dụng (bép phun) phân phối đều trong toàn bộ thể tích tháp, dòng khí thải đi từ dưới lên tiếp xúc với nước thải, tại đây toàn bộ lượng bụi trong khí thải được giữ lại, đồng thời một phần các chất ô nhiễm được hấp thụ tại đây.
Tại tầng trên của tháp bố trí lớp đệm hấp thụ có tác dụng tăng sự tiếp xúc giữa khí thải và dung dịch hấp thụ. Tại các vật liệu đệm hấp thụ, dung dịch hấp thụ tạo thành các màng nước là nơi tiếp xúc với dòng khí thải, các chất ô nhiễm trong khí thải được hấp thụ triệt để vào đây.

Hệ thống xử lý khí thải bằng phương pháp hấp thụ được chia làm 2 loại:

+ Xử lý khí thải có nhiệt độ cao

Bao gồm các khí thải từ các lò đốt như: lò đốt rác, khí thải lò hơi, khí thải từ các lò nấu nhôm, lò nấu đồng…
Các khí này có tính chất là có nhiệt độ cao, thành phần chính của các khí này là COx, SOx, NOx, Flo… khi tác dụng với nước trong dung dịch hấp thụ sẽ sinh ra các axit có tính chất ăn mòn cao.
Tùy thuộc vào từng loại khí thì có độ ăn mòn với từng loại vật liệu riêng biệt. Khi thiết kế và lựa chọn vật liệu, người thiết kế phải lưu ý một vài chú ý sau:
– Khí thải của lò nấu đồng và lò nấu nhôm sau khi hấp thụ có khả năng ăn mòn cả Inox. Do đó trong tháp xử lý tốt nhất nên bọc thêm lớp gạch chịu axit.
– Khí thải của các lò đốt khác có thể chế tạo bằng Thép CT3 sau đó bọc gạch chịu nhiệt, chịu axit.
– Vật liệu đệm sử dụng trong tháp xử lý khí thải này thường chọn là loại đệm sứ.
– Thêm một chú ý quan trọng là trong hệ thống xử lý khí thải lò nấu có nhiệt độ cao, kiên quyết phải có hệ thống trung hòa pH và hệ thống tháp làm mát dung dịch tuần hoàn

+ Xử lý khí thải có nhiệt độ thấp

Bao gồm các khí phải sinh từ các nguồn như: khí thải các bể axit, bể tẩy rửa kim loại, bể mạ, khí thải của các quá trình đốt cháy nhưng không có lửa hoặc sinh nhiệt thấp như khí thải trong quá trình đúc chảy hạt nhựa, khí thải của quá trình cắt bao bì…
Với đặc trưng khí thải này thì vật liệu tối ưu làm thân thiết bị là vật liệu nhựa PP hoặc Composite.

 

Xử lý khí thải bằng phương pháp hấp phụ

Xử lý khí thải bằng phương pháp hấp phụ là quá trình xử lý dựa trên sự phân ly khí bởi áp lực của một số chất rắn với một số loại khí có mặt trong hỗn hợp khí.
Trong quá trình đó các phân tử chất khí ô nhiễm trong khí thải bị giữ lại trên vật liệu rắn. Việc ứng dụng phương pháp hấp phụ để xử lý nguồn khí có hàm lượng tạp chất khí và hơi nhỏ.
Để làm sạch và sấy khô không khí, tách các hỗn hợp khí. Hay hơi tạo thành từng phân tử, tiến hành quá trình ảnh hưởng dị thể trên bề mặt.
Vật liệu rắn được sử dụng trong quá trình này gọi là chất hấp phụ (adsorbent), Chất khí bị giữ lại trong chất hấp phụ được gọi là chất bị hấp phụ (adsorbate).

Hấp phụ khí thải bằng phương pháp hoá học là phương pháp mà các chất khí bị hấp phụ. Do có phản ứng hóa học với vật liệu hấp phụ, lực liên kết phân tử trong trường hợp này mạnh hơn ở hấp phụ vật lý.

+ Xử lý khí thải bằng tháp hấp phụ than hoạt tính:

Thường được sử dụng trong quá trình xử lý khí thải của các máy in công nghiệp, các buồng gia nhiệt công suất nhỏ
Đặc điểm của hệ thống xử lý khí thải bằng phương pháp hấp phụ là lưu lượng khí thải nhỏ, nồng độ ô nhiễm trong khí thải thấp.

+ Hấp phụ bằng các vật liệu rắn có khả năng tác dụng hóa học với khí thải
Phương pháp này thường chỉ được áp dụng khi xử lý khí thải có duy nhất một thành phần ô nhiễm nhất định, hoặc được sử dụng trong phương pháp thu hồi khí thải, làm khô khí (vd. oxy, khí thiên nhiên) và hấp phụ các hydrocarbon nặng (phân cực) từ khí gas thiên nhiên

3. Xử lý khí thải bằng phương pháp sinh học Biofilter

Được ứng dụng từ các vật liệu quen thuộc, chi phí thấp nhưng cho hiệu quả cao, hệ thống lọc sinh học (Bioflters system) được thiết kế để đạt được cả ba yếu tố: chi phí vận hành thấp, chi phí bảo trì thấp và nâng cấp dễ dàng bất cứ khi nào yêu cầu thay đổi.
Hệ thống Bioflters là hệ thống xử lý sinh học có khả năng loại bỏ từ 90-98% mùi hôi. Các khí độc hại được hút ra từ nguồn bằng quạt thổi và không khí được ép qua hệ thống làm ẩm để nâng độ ẩm tương đối (RH) lên> 95%. Nước/dung dịch hấp thụ được bơm tuần hoàn trở lại. Lượng nước thất thoát do bay hơi được tự động nạp lại bằng cảm biến mức điện tử và van điện.
Khí khuếch tán qua lớp vật liệu lọc hữu cơ ẩm nơi mà các vi sinh vật chuyển hóa chất hữu cơ và các hợp chất có mùi khác. Độ ẩm trong lớp lọc được duy trì và kiểm soát bởi hệ thống tưới. Không khí đã được khử mùi và khử nhiễm được thải vào bầu khí quyển. Hệ thống được thiết kế để có thể thêm bộ xử lý than hoạt tính vào giai đoạn sau nếu được yêu cầu. Hệ thống làm ẩm(scruber) có thể dễ dàng mở ra để bảo trì.

The Lotus đặc biệt chú trọng việc xử lý hiệu quả ô nhiễm không khí vì sự phát tán và gây ra những hậu quả khó lường thậm chí nặng nề hơn nước thải, các loại bụi dạng sợi sắc nhọn và khí độc dễ gây tổn thương cho hệ hô hấp của con người và động vật đặc biệt là phổi từ đó phát sinh các di căn.

The Lotus mong muốn đồng hành cùng doanh nghiệp và địa phương. Đưa ra quy trình quản lý và xử lý khi thải hiệu quả, chặt chẽ tại nơi phát sinh nhằm hạn chế sự phát tán vào môi trường theo các tiêu chí phát triển bền vững, chuyển đổi xanh, giảm phát thải CO2.